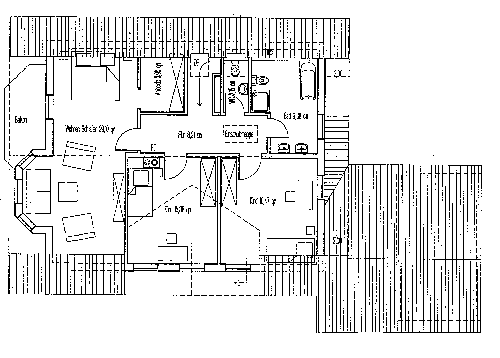
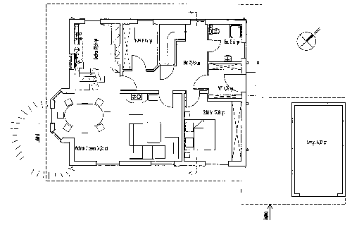
Hier findet Ihr die Baupläne für die einzelnen Geschosse.
Durch Klicken auf das entsprechende Bild erhaltet
Ihr eine größere Version.
 
Dachgeschoss
Erdgeschoss